Избранное
Заказать звонок
Этаж

Дом № 2
Аносино Парк

190 кв.м
5.08 сот.
Продано
Внешняя отделка
Облицовочный кирпич
Стены
Газобетонный блок
Кровля
Мягкая черепица
Фундамент
Монолитная плита
Внутренняя отделка
White Box

Характеристики

Площадь
190 кв.м
Жилая площадь
114.7 кв.м
Площадь кухни
42.6 кв.м
Площадь участка
5.08 сот.
Этажей в доме
2
Кадастровый номер
50:08:0050329:2179

Новорижское, 25 км

  • Электричество
  • Газ
  • Вода
  • Канализация

Готовый двухэтажный дом 190 кв.м. на участке 5,08 сотки в жилом охраняемом коттеджном посёлке «Аносино Парк» в элитном, экологически чистом районе подмосковья на Новой Риге. 

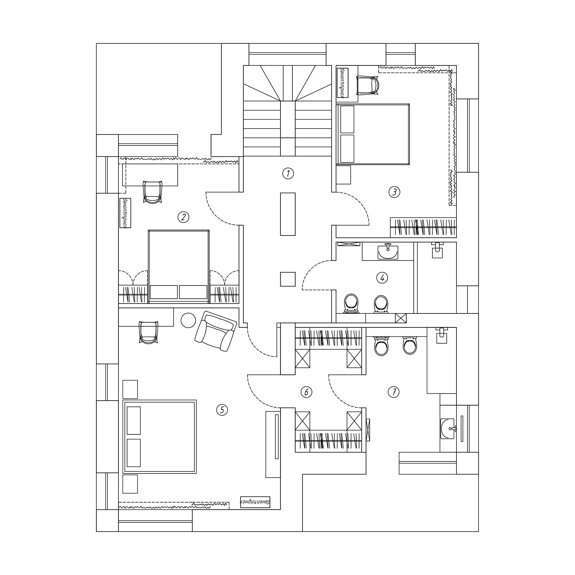
На первом этаже расположены: прихожая, котельная-постирочная, санузел, кабинет, просторная кухня-гостиная с выходом на крытую летнюю террасу. На втором этаже дома расположена мастер спальная со своей гардеробной и санузлом, две детские спальни и общий санузел. В доме выполнена предчистовая отделка стен, теплый пол по всей площади первого этажа, выполнена сухая стяжка на 1 и 2 этажах. Смонтированы радиаторы на первом и втором этажах, в котельной установлен газовый котел, подведен газ, выполнена водоподготовка. На участке имеется индивидуальная скважина с кессоном, установлен ЛОС с ж-б колодцем глубиной 4м. Участок полностью огорожен, выполнена отмостка и укладка брусчатки по периметру дома, в парковочной и пешеходной зоне.

Конструктив дома возведен из газоблока 400мм, утеплителя - минвата 5 см, и облицовочного кирпича. Между первым и вторым этажом выполнен монолитный армопояс и монолитные плиты перекрытия. Кровля – мягкая черепица, установлены пластиковые окна и двери. 

К дому уже подключены все коммуникации: электричество (15 кВт), магистральный газ, водопровод (скважина), канализация (септик). Участок огорожен забором из металлического евроштакетника высотой 2 м в единой стилистике коттеджного посёлка, выполнена парковка на 2 автомобиля и входная группа с распашными воротами и калиткой.

Поселок расположен в 24 км от МКАД по Новорижскому шоссе, в непосредственной близости расположена вся необходимая социальная инфраструктура (муниципальные поликлиники, детские сады, школы), в шаговой доступности находится гипермаркет «Мираторг», на расстоянии 5 минут езды на автомобиле расположены более 5 различных Гипермаркетов, зона свободной торговли Outlet Village, фермерский рынок. Огромный выбор детских и взрослых спортивных центров. Поселок расположен в 2 км от Трассы (Автодорога Балтия), в пешей доступности имеется остановка общественного транспорта маршрутных такси и автобусов, идущих до метро Строгино или Щукинская.

Продажа от застройщика БЕЗ ПОСРЕДНИКА. Полная сумма в ДОГОВОРЕ, отсутствуют дополнительные сборы. Помощь в сборе документов и регистрация сделки входит в стоимость. 

О поселке:

  • Охраняемая территория, два въезда через КПП;
  • Гостевой паркинг;
  • Торговые ряды с необходимым набором магазинов;
  • Уличное освещение;
  • Центральные коммуникации: газ и электричество (прямые договора), оплата по сельским тарифам;
  • Интернет и телевидение провайдер Всем WiFi со скоростью 150-200 мбит;
  • Асфальтированные дороги и тротуар на центральных улицах;
  • Территорию поселка обслуживает УК, охрана, видеонаблюдение, чистка дорог зимой, стрижка газонов, уборка территории;
  • Детские площадки для детей разных возрастов;
  • Спортивные площадки, футбольная коробка, уличные тренажеры воркаут, настольный теннис, волейбольная площадка;
  • Парковая зона для прогулок и отдыха.

Местоположение