Избранное
Заказать звонок
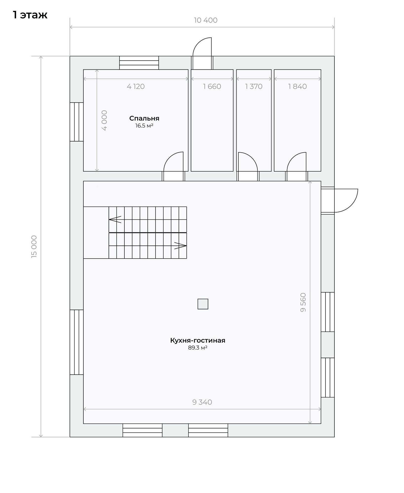
Этаж

Дом № 133
Аносино Парк

252 кв.м
5.41 сот.
Продано
Внешняя отделка
Облицовочный кирпич
Стены
Керамический блок
Кровля
Фальцевая кровля
Фундамент
Ленточный
Внутренняя отделка
Без отделки

Характеристики

Площадь
252 кв.м
Площадь кухни
24 кв.м
Площадь участка
5.41 сот.
Этажей в доме
2
Кадастровый номер
50:08:0050329:2098

Новорижское, 25 км

  • Электричество
  • Газ
  • Вода
  • Канализация

Готовый двухэтажный дом 252,7 кв.м. на участке 5,41 сотка в жилом охраняемом коттеджном посёлке «Аносино Парк» в элитном, экологически чистом районе подмосковья на Новой Риге.

Продажа от застройщика БЕЗ ПОСРЕДНИКА. Любая льготная ипотека!

Полная сумма в ДОГОВОРЕ, отсутствуют дополнительные сборы. Помощь в сборе документов и регистрация сделки входит в стоимость.

Конструктив дома: ленточный фундамент, дом возведен из керамических блоков «Паратерм» 380мм, монолитные перекрытия и лестницы, внешняя отделка стен - облицовочный кирпич. Кровля – металлическая бельгийский клик-фальц, дорогая дверь.

Первый этаж 126 кв.м. (высота потолков 4 м) расположены: прихожая, гостевая спальня/кабинет, санузел, просторная кухня-гостиная (open space), бойлерная, гардероб.

Второй этаж 126 кв.м. (высота потолков в коньке 6 м) расположены: 4 спальни и 3 санузла. Три мастер спальные комнаты со своими санузлами, одна спальня без санузла, большая ниша для шкафа (гардероб)

Отделка: стены отштукатурены, теплый пол по всей площади первого этажа, установлены радиаторы, выполнена полусухая стяжка.

Благоустройство: Участок огорожен забором из металлического евроштакетника высотой 2 м в единой стилистике коттеджного посёлка, выполнена входная группа с распашными воротами и калиткой, забетонирован подъезд от основного полотна дороги к воротам, построен гараж на два машино-места и мотоцикл.

К дому уже подключены все коммуникации: электричество (30 кВт), магистральный газ (газовая котельная с котлом на 50 кВт), на участке имеется индивидуальная скважина глубиной 120 м. с кессоном, установлен ЛОС с ж-б колодцем. Участок огорожен забором из металлического евроштакетника высотой 2 м в единой стилистике коттеджного посёлка.

О поселке:

  • Охраняемая территория, два въезда через КПП;
  • Гостевой паркинг;
  • Торговые ряды с необходимым набором магазинов;
  • Уличное освещение;
  • Центральные коммуникации: газ и электричество (прямые договора), оплата по сельским тарифам;
  • Интернет и телевидение провайдер Всем WiFi со скоростью 100-500 мбит;
  • Асфальтированные дороги и тротуар на центральных улицах;
  • Территорию поселка обслуживает УК, охрана, видеонаблюдение, чистка дорог зимой, стрижка газонов, уборка территории;
  • Детские площадки для детей разных возрастов;
  • Спортивные площадки, футбольная коробка, уличные тренажеры воркаут, настольный теннис, волейбольная площадка;
  • Парковая зона для прогулок и отдыха.

Поселок расположен в 24 км от МКАД по Новорижскому шоссе, в непосредственной близости расположена вся необходимая социальная инфраструктура (муниципальные поликлиники, детские сады, школы), в шаговой доступности находится гипермаркет «Мираторг», на расстоянии 5 минут езды на автомобиле расположены более 5 различных Гипермаркетов, зона свободной торговли Outlet Village, фермерский рынок. Огромный выбор детских и взрослых спортивных центров. Поселок расположен в 2 км от Трассы (Автодорога Балтия), в пешей доступности имеется остановка общественного транспорта маршрутных такси и автобусов, идущих до метро Строгино или Щукинская.

Местоположение