Избранное
Заказать звонок
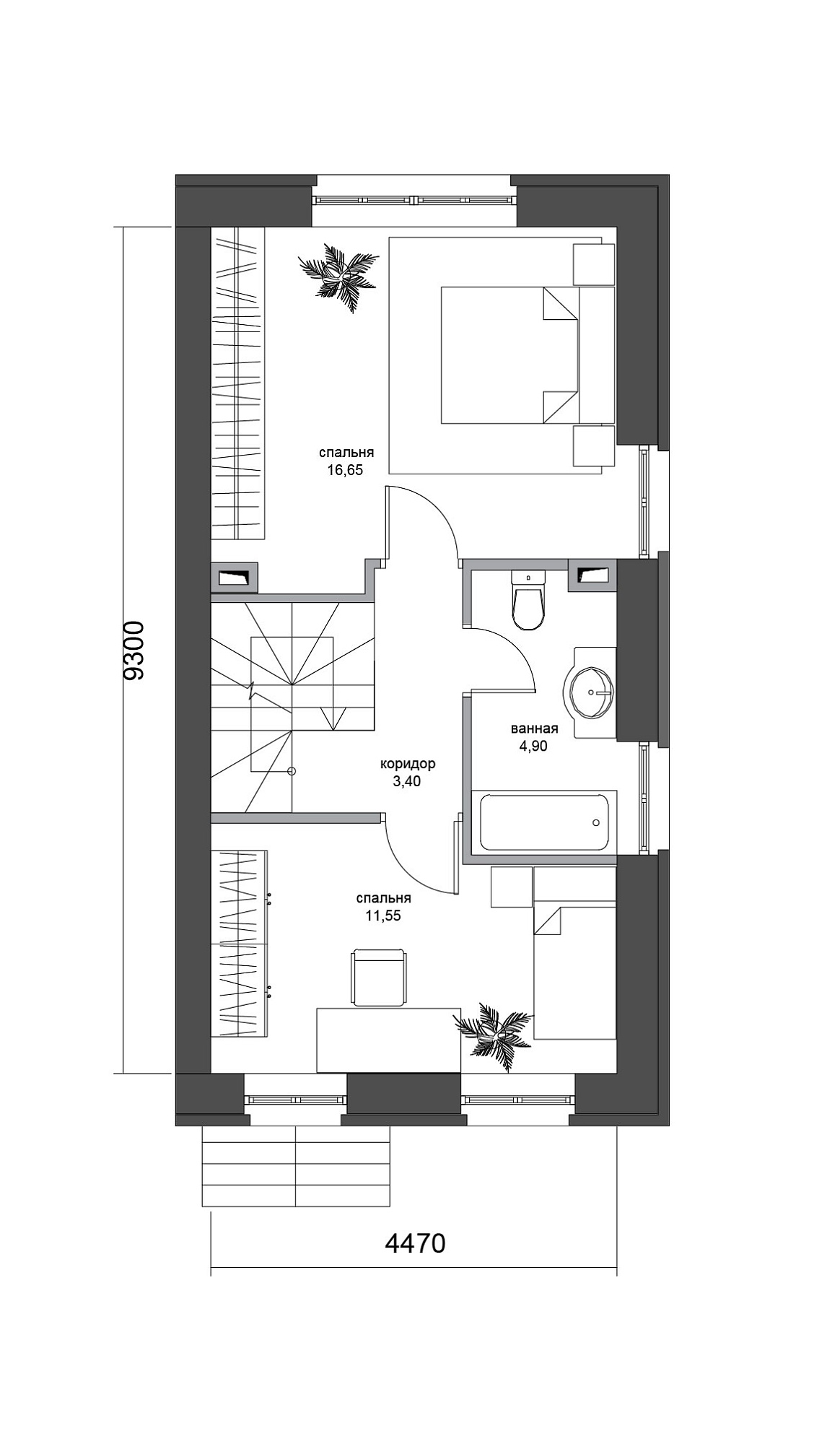
Этаж

Таунхаус № 24-9
Орловъ

117.3 кв.м
1.98 сот.
Продано

Характеристики

Площадь
117.3 кв.м
Площадь участка
1.98 сот.
Этажей в доме
2
Задний двор
Есть
Ближайшее метро
Домодедовская, 15 мин.
Срок сдачи
IV квартал 2018

Каширское, 12 км

  • Электричество
  • Газ
  • Вода
  • Канализация

Таунхаус площадью 83 кв.м.

На первом этаже расположены холл и кухня-столовая, на втором этаже две спальни или детские комнаты.

На участке перед домом предусмотрено парковочное место, а за домом есть внутренний двор, общая площадь участка 1,98 сот.

Местоположение